HOMEへ戻る
賃貸一覧へ戻る
 
マンション
物件名:世田谷区玉川3丁目
二子玉川 徒歩3分 ★1階
交通:東急田園都市線「二子玉川」徒歩3分
所在:東京都世田谷区玉川3丁目
賃料: 2,377,300円
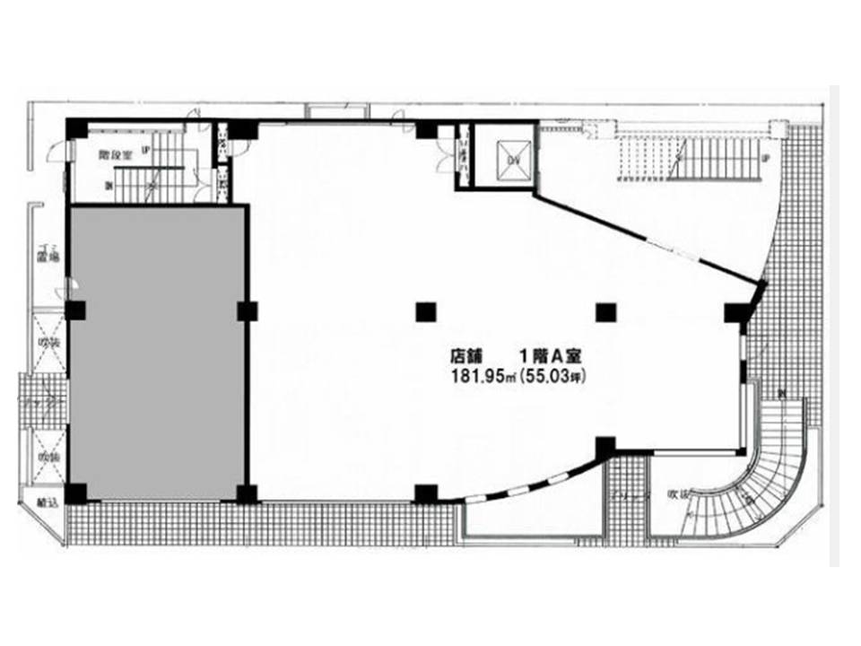
間取り 貸店舗・事務所(一部) 専有面積 181.95m2 敷金 なし 礼金 2ヶ月
構造 RC 階建/階 3階建 地下1階/1階部分 管理費 なし 築年数 1993年8月
物件No.S-0005
資料請求・見学・お問い合わせ
資料請求ガイド 他の物件も一括で資料請求される方は、オススメ物件一覧ページにてご希望の物件の「icon 資料請求」にチェックを入れ、一覧ページ下の「iconチェックした物件を資料請求する」ボタンから送信ください。
虫メガネ画像 全画像クリックで拡大表示します。

画像拡大

画像拡大

画像拡大

物件詳細情報

使用用途 貸店舗・事務所(一部) 駐車場
現況 居住中 入居者人数
入居日 2014年 11月中旬 ペット
契約期間 3年 保険加入 加入要
設備
備考・条件 保証金:8ケ月
保証金償却:5年未満解約:20% 5年以上10年未満:10% 10年以上:5%
担当者より ■一階 ■東急田園都市線・大井町線 利用可能
資料請求・現地見学・お問い合わせはこちら
HOMEへ戻る