HOMEへ戻る
賃貸一覧へ戻る
 
マンション
物件名:世田谷区池尻3丁目
池尻大橋 徒歩9分 ★1階
交通:東急田園都市線「池尻大橋」徒歩9分
所在:東京都世田谷区池尻大橋3丁目
賃料: 464,400円
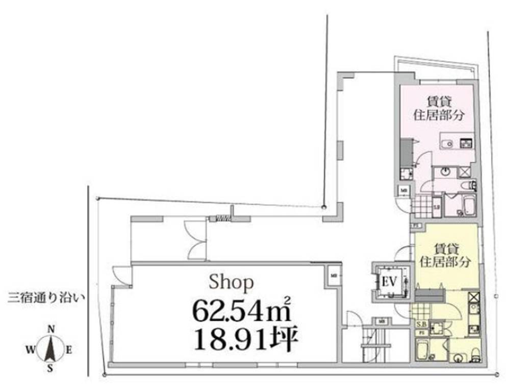
間取り 専有面積 62.54m2 敷金 なし 礼金 2ヶ月
構造 RC 階建/階 5階建/1階部分 管理費 \21,600 築年数 2014年4月
物件No.S-0016
資料請求・見学・お問い合わせ
資料請求ガイド 他の物件も一括で資料請求される方は、オススメ物件一覧ページにてご希望の物件の「icon 資料請求」にチェックを入れ、一覧ページ下の「iconチェックした物件を資料請求する」ボタンから送信ください。
虫メガネ画像 全画像クリックで拡大表示します。

画像拡大

画像拡大

物件詳細情報

使用用途 貸店舗・事務所(一部) 駐車場
現況 未完成 入居者人数
入居日 2014年5月上旬 ペット
契約期間 5年 保険加入
設備
備考・条件 新築★人気の三宿エリアに貴重な路面店募集
視認性◎新築デザイナーズ路面店★飲食店、物販、事務所等諸条件是非ご相談下さい!三宿交差点からすぐ!
担当者より ■新築 ■1階 ■スケルトン ■飲食可
資料請求・現地見学・お問い合わせはこちら
HOMEへ戻る