▼ マンション
物件名:プレール・ドゥーク早稲田Ⅲ
早稲田7分 ★礼0敷0★
交通:東西線「早稲田駅」徒歩7分
所在:東京都新宿区早稲田鶴巻町563-19
賃料: 86,000円
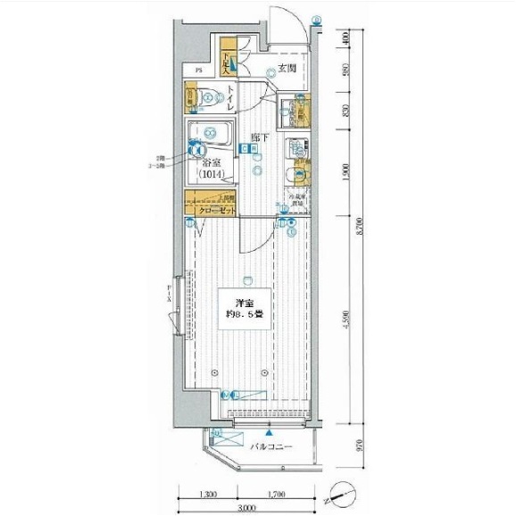
| 間取り |
1K |
専有面積 |
25.64m2 |
敷金 |
なし |
礼金 |
なし |
| 構造 |
RC |
階建/階 |
8階建 / 4階 |
管理費 |
\8,000 |
築年数 |
2012年5月 |
他の物件も一括で資料請求される方は、オススメ物件一覧ページにてご希望の物件の「
資料請求」にチェックを入れ、一覧ページ下の「

チェックした物件を資料請求する」ボタンから送信ください。

全画像クリックで拡大表示します。
物件詳細情報
| 使用用途 |
居住用 |
駐車場 |
なし |
| 現況 |
空き |
入居者人数 |
|
| 入居日 |
即時 |
ペット |
|
| 契約期間 |
2年 |
保険加入 |
|
| 設備 |
宅配BOX・システムキッチン・バイク置き場・バス・トイレ別室・室内洗濯機置場・オートロック・モニター付インターホン・ガスコンロ可・エレベーター・浴室乾燥機・給湯・フローリング・都市ガス・エアコン・バルコニー・駐輪場・CS・BS端子・温水洗浄便座・トイレ |
| 備考・条件 |
担当:古郷 |
| 担当者より |
■浴室乾燥機 ■ペット相談可 ■新宿まで20分(電車) |