HOMEへ戻る
賃貸一覧へ戻る
 
マンション
物件名:スタイリオ中延 Ⅱ WEST
中延駅 徒歩2分
交通:都営浅草線「中延」徒歩2分
所在:東京都品川区中延4丁目8
賃料: 99,000円
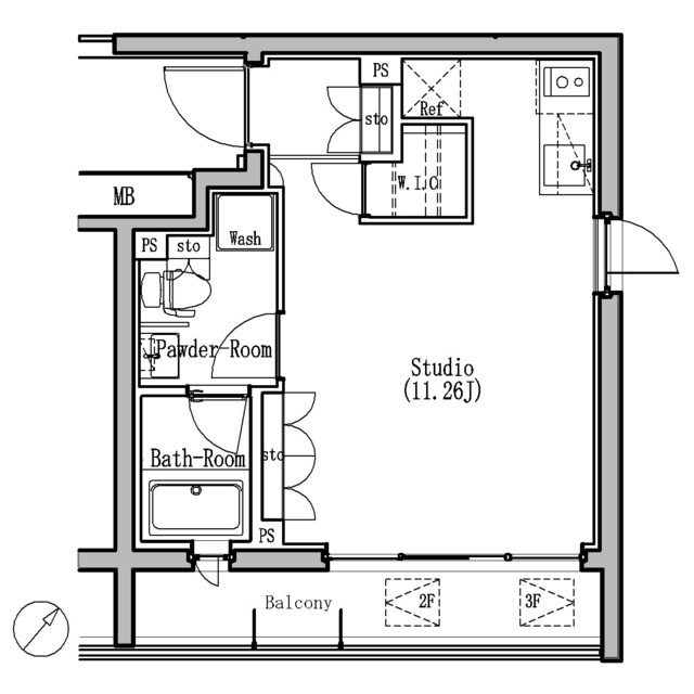
間取り ワンルーム 専有面積 28.32m2 敷金 2ヶ月 礼金 1ヶ月
構造 RC 階建/階 管理費 \5,000 築年数 年月
物件No.M-0208
資料請求・見学・お問い合わせ
資料請求ガイド 他の物件も一括で資料請求される方は、オススメ物件一覧ページにてご希望の物件の「icon 資料請求」にチェックを入れ、一覧ページ下の「iconチェックした物件を資料請求する」ボタンから送信ください。
虫メガネ画像 全画像クリックで拡大表示します。

画像拡大

画像拡大

物件詳細情報

使用用途 居住用 駐車場
現況 居住中 入居者人数
入居日 2014年08月中旬予定 ペット
契約期間 2年 保険加入
設備 宅配BOX・システムキッチン・バイク置き場・収納スペース・バス・トイレ別室・室内洗濯機置場・オートロック・モニター付インターホン・ディンプルキー・防犯カメラ・複層ガラス・エレベーター・浴室乾燥機・洗面所独立・シャワー・給湯・フローリング・都市ガス・エアコン・バルコニー・火災警報器(報知機)・光ファイバー・ケーブルTV・CS・温水洗浄便座・トイレ
備考・条件 駅2分の賃貸マンション☆
ワイドスパンで梁がないすっきりとした居室、しっかりとした防音対策&省エネマンション
賃貸保証等:利用可(株式会社リクルートフォレントインシュア、初回保証料は賃料等の1ヶ月分(継続保証手数料あり))
管理形態/方式:日勤管理
バルコニー:南東向き
担当者より ■洗面所独立 ■角部屋
資料請求・現地見学・お問い合わせはこちら
HOMEへ戻る