東京、港区を拠点に賃貸マンション・アパート・店舗・オフィス物件なら株式会社インテリジェンス・ハウス
株式会社インテリジェンス・ハウス
東京都港区高輪3-2-3 T323プレイスビル3F TEL:03-5791-2367
▼
マンション
物件名:レグノ・プレミア高輪
ペット可! 2匹まで★敷0
交通:JR山手線「品川」徒歩9分
所在:東京都港区高輪2丁目14-19
賃料:
195,000円
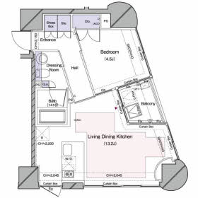
間取り
1LDK
専有面積
42.64m
2
敷金
0ヶ月
礼金
2ヶ月
構造
RC
階建/階
管理費
\10,000
築年数
年月
物件No.M-0222
他の物件も一括で資料請求される方
は、オススメ物件一覧ページにてご希望の物件の「
資料請求
」にチェックを入れ、一覧ページ下の「
チェックした物件を資料請求する」ボタンから送信ください。
全画像クリックで拡大表示します。
物件詳細情報
使用用途
居住用
駐車場
現況
居住中
入居者人数
入居日
2014年7月中旬
ペット
相談可
契約期間
2年
保険加入
要 2年 22,000円
設備
バス・トイレ別室・室内洗濯機置場・クローゼット・オートロック・モニター付インターホン・2口コンロ・ガスコンロ付
備考・条件
日当たり良好!! 眺望良好!!
担当者より
■2人入居可 ■洗面台独立 ■B・T別室
PAGE TOP