HOMEへ戻る
賃貸一覧へ戻る
 
マンション
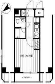
物件名:KWレジデンス高野台
練馬高野台 徒歩10分
交通:西武池袋・豊島線「練馬高野台」徒歩10分
所在:東京都練馬区高野台4丁目3−1
賃料: 70,000円
間取り 1K 専有面積 20.96m2 敷金 1ヶ月 礼金 0ヶ月
構造 RC 階建/階 管理費 \8,000 築年数 年月
物件No.M-0316
資料請求・見学・お問い合わせ
資料請求ガイド 他の物件も一括で資料請求される方は、オススメ物件一覧ページにてご希望の物件の「icon 資料請求」にチェックを入れ、一覧ページ下の「iconチェックした物件を資料請求する」ボタンから送信ください。
虫メガネ画像 全画像クリックで拡大表示します。

画像拡大

画像拡大

物件詳細情報

使用用途 居住用 駐車場
現況 居住中 入居者人数
入居日 2014年9月10日 ペット
契約期間 保険加入 要 2年 20,000円
設備 エアコン、バス・トイレ別、浴室乾燥機、インターネット対応、システムキッチン、2階以上の物件、フローリング、室内洗濯機置場、バルコニー、エレベーター、外観タイル張り、都市ガス、オートロック、宅配ボックス
備考・条件
担当者より ■バス・トイレ別 ■バス・トイレ別 ■バス・トイレ別
資料請求・現地見学・お問い合わせはこちら
HOMEへ戻る