東京、港区を拠点に賃貸マンション・アパート・店舗・オフィス物件なら株式会社インテリジェンス・ハウス
株式会社インテリジェンス・ハウス
東京都港区高輪3-2-3 T323プレイスビル3F TEL:03-5791-2367
▼
マンション
物件名:リガーレ・プレズント氷川台
氷川台 10分
交通:有楽町線 「氷川台」徒歩10分
所在:東京都練馬区平和台3-3-2-16
賃料:
74,000円
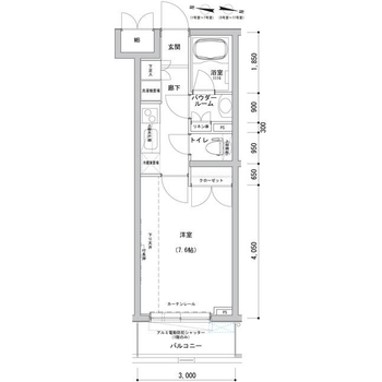
間取り
1K
専有面積
26.10m
2
敷金
0ヶ月
礼金
1ヶ月
構造
RC
階建/階
管理費
\8,500
築年数
年月
物件No.M-0331
他の物件も一括で資料請求される方
は、オススメ物件一覧ページにてご希望の物件の「
資料請求
」にチェックを入れ、一覧ページ下の「
チェックした物件を資料請求する」ボタンから送信ください。
全画像クリックで拡大表示します。
物件詳細情報
使用用途
居住用
駐車場
現況
空室
入居者人数
入居日
2014年9月上旬予定
ペット
契約期間
2年
保険加入
要2年21,000円
設備
フローリング・エアコン・角部屋・分譲賃貸・温水洗浄便座・バストイレ別・洗面所独立・室内洗濯機置き場・浴室乾燥機・システムキッチン・ガスコンロ・オートロック
備考・条件
担当者より
■洗面所独立 ■浴室乾燥機
PAGE TOP