HOMEへ戻る
賃貸一覧へ戻る
 
マンション
物件名:カスタリア麻布十番七面坂
★麻布十番駅徒歩4分★礼金0
交通:南北線「麻布十番」徒歩分
所在:
賃料: 223,000円
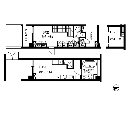
間取り 1LDK 専有面積 48.30m2 敷金 44.60万円 礼金 なし
構造 SRC 階建/階 1階/13階(メゾネット1階~2階) 管理費 \10,000 築年数 2005年1月
物件No.M-0351
資料請求・見学・お問い合わせ
資料請求ガイド 他の物件も一括で資料請求される方は、オススメ物件一覧ページにてご希望の物件の「icon 資料請求」にチェックを入れ、一覧ページ下の「iconチェックした物件を資料請求する」ボタンから送信ください。
虫メガネ画像 全画像クリックで拡大表示します。

画像拡大

画像拡大

画像拡大
画像拡大
画像拡大
画像拡大
画像拡大

物件詳細情報

使用用途 住居 駐車場 要確認
現況 空室 入居者人数 要確認
入居日 即時 ペット
契約期間 2年 保険加入 要2年
設備 駐輪場・B・T別室・オートバス・浴室乾燥機・トイレ2か所・温水洗浄便座・3口ガスコンロ・システムキッチン・オートロック・ロフト付・オートロック・BS・CATV・ディンプルキー
備考・条件
担当者より オートバス・トイレ2ヶ所・おしゃれな内装・3口ガスコンロ!担当島子
資料請求・現地見学・お問い合わせはこちら
HOMEへ戻る