▼ マンション
物件名:コンフォリア麻布台
★麻布十番歩8分★ペット★礼金0
交通:東京メトロ南北線「麻布十番」徒歩8分
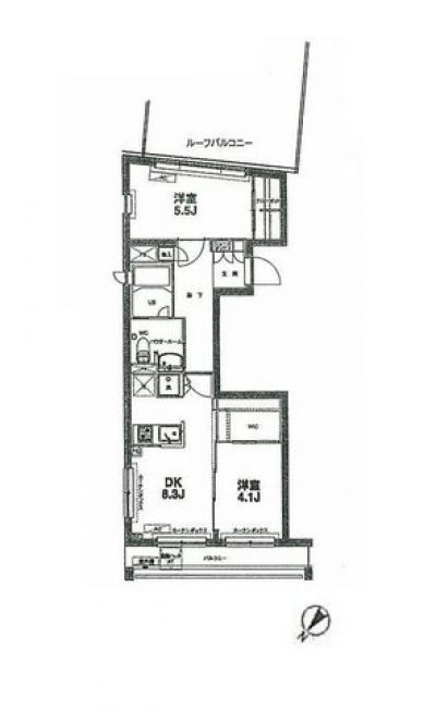
| 間取り |
2DK |
専有面積 |
48.15m2 |
敷金 |
43.80万円 |
礼金 |
なし |
| 構造 |
RC |
階建/階 |
4階/4階 |
管理費 |
¥10,000 |
築年数 |
2005年3月 |
他の物件も一括で資料請求される方は、オススメ物件一覧ページにてご希望の物件の「
資料請求」にチェックを入れ、一覧ページ下の「

チェックした物件を資料請求する」ボタンから送信ください。

全画像クリックで拡大表示します。
物件詳細情報
| 使用用途 |
住居 |
駐車場 |
なし |
| 現況 |
要確認 |
入居者人数 |
要確認 |
| 入居日 |
H27.1月中旬 |
ペット |
ペット相談 |
| 契約期間 |
2年 |
保険加入 |
必須 |
| 設備 |
オートロック, 防犯カメラ, 24時間有人管理, ディンプルキー, 宅配ボックス, エレベーター, 内廊下, 敷地内ゴミ置場, TVモニター付インターフォン, BS, CS, CATV, 光ファイバー |
| 備考・条件 |
共有スペースには、外出中の宅配物を一時的に保管できる宅配ボックスを設置。
また敷地内には、専用ゴミ置き場、駐輪場などが完備されています。
|
| 担当者より |
・人気の麻布十番エリア・仲介料割引可能・礼金0・3面遮光日当たり良好・担当島子 |