HOMEへ戻る
賃貸一覧へ戻る
 
マンション
物件名:RESIDENCE高輪台
★3駅利用可★高輪台駅徒歩4分
交通:都営浅草線「高輪台」徒歩4分
所在:
賃料: 98,000円
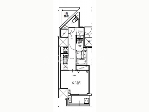
間取り 1K 専有面積 28.43m2 敷金 9.8万円 礼金 なし
構造 鉄筋コンクリート 階建/階 2階/10階 管理費 ¥10,000 築年数 2012年9月
物件No.M-0481
資料請求・見学・お問い合わせ
資料請求ガイド 他の物件も一括で資料請求される方は、オススメ物件一覧ページにてご希望の物件の「icon 資料請求」にチェックを入れ、一覧ページ下の「iconチェックした物件を資料請求する」ボタンから送信ください。
虫メガネ画像 全画像クリックで拡大表示します。

画像拡大

画像拡大

画像拡大
画像拡大
画像拡大
画像拡大
画像拡大

物件詳細情報

使用用途 住居 駐車場 なし
現況 確認 入居者人数 確認
入居日 相談 ペット 不可
契約期間 2年 保険加入 有 20,000円 2年
設備 オートロック, 防犯カメラ, 宅配ボックス, エレベーター, 駐輪場, 敷地内ゴミ置場, 閑静な住宅街, システムキッチン, エアコン, TVモニター付インターフォン, BS, CS, CATV, 光ファイバー
備考・条件
担当者より 仲介料割引可能!高輪台、白金台、品川、3駅利用可・デザイナーズ・使い勝手の良い間取り・担当島子
資料請求・現地見学・お問い合わせはこちら
HOMEへ戻る