▼ マンション
物件名:レジディア麻布台603号室
★六本木一丁目駅徒歩6分
交通:東京メトロ南北線「六本木一丁目」徒歩6分
| 間取り |
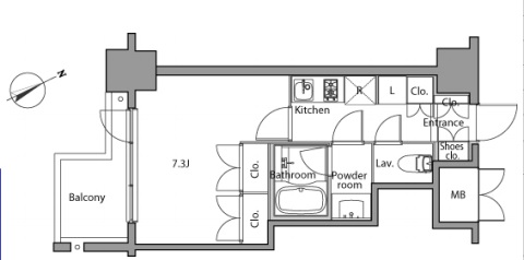
1K |
専有面積 |
27.00m2 |
敷金 |
26.2万円 |
礼金 |
なし |
| 構造 |
鉄筋コンクリート |
階建/階 |
6階/14階 |
管理費 |
¥8,000 |
築年数 |
2006年3月 |
他の物件も一括で資料請求される方は、オススメ物件一覧ページにてご希望の物件の「
資料請求」にチェックを入れ、一覧ページ下の「

チェックした物件を資料請求する」ボタンから送信ください。

全画像クリックで拡大表示します。
物件詳細情報
| 使用用途 |
有(52,500円/月) |
駐車場 |
なし |
| 現況 |
確認 |
入居者人数 |
確認 |
| 入居日 |
相談 |
ペット |
可 |
| 契約期間 |
2年 |
保険加入 |
有 20,000円 2年 |
| 設備 |
ガスキッチン、浴室乾燥、宅配ボックス、オートロック、駐車場有
防犯カメラ、ダブルロック、ディンプルキー、駐輪場、敷地内ゴミ置場、BS、CS、CATV、光ファイバー、エアコン、システムキッチン、ウォシュレット他 |
| 備考・条件 |
|
| 担当者より |
仲介料無料!ペット可・六本木一丁目、六本木、神谷町、3駅利用可・デザイナーズ・周辺生活環境良好・担当島子 |