HOMEへ戻る
賃貸一覧へ戻る
 
マンション
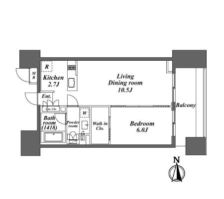
物件名:レジディア芝浦KAIGAN
★景観良好な高級住宅街芝浦エリア
交通:ゆりかもめ「芝浦ふ頭」徒歩3分
所在:
賃料: 155,000円
間取り 1LDK 専有面積 44.82m2 敷金 31万円 礼金 15.5万円
構造 鉄筋コンクリート 階建/階 8階/12階 管理費 ¥10,000 築年数 2010年1月
物件No.M-0498
資料請求・見学・お問い合わせ
資料請求ガイド 他の物件も一括で資料請求される方は、オススメ物件一覧ページにてご希望の物件の「icon 資料請求」にチェックを入れ、一覧ページ下の「iconチェックした物件を資料請求する」ボタンから送信ください。
虫メガネ画像 全画像クリックで拡大表示します。

画像拡大

画像拡大

画像拡大
画像拡大
画像拡大
画像拡大
画像拡大

物件詳細情報

使用用途 住居 駐車場 あり
現況 空き 入居者人数 確認
入居日 即可 ペット
契約期間 2年 保険加入 有 20,000円 2年
設備 建物設備
オートロック 防犯カメラ 宅配ボックス エレベーター 駐車場 駐輪場 バイク置場 敷地内ゴミ置き場 ディンプルキー ダブルロック 

室内設備
追焚き 浴室乾燥機 温水洗浄便座 ガスコンロ システムキッチン エアコン 独立洗面 TVモニター付きインターホン 光ファイバー BS/CS ドラム式洗濯乾燥機
備考・条件
担当者より 仲介料割引可!3駅利用可・床暖付・ペット可・ウォークインクローゼット・ダブルロック・担当金子
資料請求・現地見学・お問い合わせはこちら
HOMEへ戻る