HOMEへ戻る
賃貸一覧へ戻る
 
マンション
物件名:とらい館ビル3階
★茅場町4分★仲介料無料
交通:東京メトロ日比谷線「茅場町」徒歩4分
所在:
賃料: 317,200円
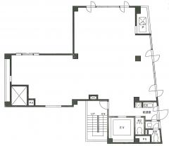
間取り 1R 専有面積 121.39m2 敷金 7ヶ月 礼金 なし
構造 RC 階建/階 3階/9階 管理費 ¥99,144 築年数 1997年1月
物件No.O-0004
資料請求・見学・お問い合わせ
資料請求ガイド 他の物件も一括で資料請求される方は、オススメ物件一覧ページにてご希望の物件の「icon 資料請求」にチェックを入れ、一覧ページ下の「iconチェックした物件を資料請求する」ボタンから送信ください。
虫メガネ画像 全画像クリックで拡大表示します。

画像拡大

画像拡大

画像拡大
画像拡大
画像拡大
画像拡大

物件詳細情報

使用用途 事務所 駐車場 なし
現況 空室 入居者人数
入居日 即日 ペット
契約期間 2年 保険加入 必須
設備 E V :1基(13人乗)、天井高:―㎜、床仕様:タイルカーペット、空調:個別空調、トイレ:室内専用 男女別 洋式、給 湯:室内専用
その他:24時間使用可能、機械警備(綜合警備保障)
備考・条件 東京メトロ日比谷線 茅場町駅徒歩4分
東京メトロ東西線  茅場町駅徒歩4分
JR京葉線 八丁堀駅徒歩4分 半蔵門線水天宮前10分
東京メトロ日比谷線 八丁堀駅徒歩4分
担当者より ・フリーレント付き!・仲介料無料!・初期費用お安いです!・八丁堀駅4分、半蔵門線水天宮駅10分 担当金子
資料請求・現地見学・お問い合わせはこちら
HOMEへ戻る