▼ マンション
物件名:パークアクシス渋谷桜丘サウス
★角部屋★便利な渋谷駅徒歩6分!
交通:JR山手線「渋谷」徒歩6分
| 間取り |
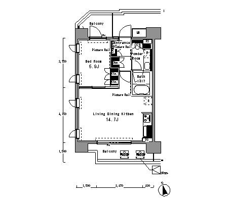
1LDK |
専有面積 |
45.82m2 |
敷金 |
43.2万円 |
礼金 |
なし |
| 構造 |
鉄筋コンクリート |
階建/階 |
9階/14階 |
管理費 |
¥15,000 |
築年数 |
2006年9月 |
他の物件も一括で資料請求される方は、オススメ物件一覧ページにてご希望の物件の「
資料請求」にチェックを入れ、一覧ページ下の「

チェックした物件を資料請求する」ボタンから送信ください。

全画像クリックで拡大表示します。
物件詳細情報
| 使用用途 |
住居 |
駐車場 |
有(47,000円) |
| 現況 |
空き |
入居者人数 |
確認 |
| 入居日 |
即可 |
ペット |
可 |
| 契約期間 |
2年 |
保険加入 |
要 |
| 設備 |
インターネット対応、BSアンテナ、CSアンテナ、CATV、光ファイバー、オートロック、TVドアホン、防犯カメラ、ディンプルキー、ダブルロックキー、宅配ボックス、バイク置き場、駐輪場、エレベータ、デザイナーズ、閑静な住宅街、システムキッチン、バス・トイレ別、温水洗浄便座、浴室乾燥機、追い焚き、フローリング、バルコニー、礼金なし、2人入居相談、駐車場あり、2階以上、南向き部屋、室内洗濯機置き場、エアコン、ペット相談、楽器相談、ガスコンロ3口/グリル付き/洗濯乾燥機/オートバス/クローゼット/シューズボックス |
| 備考・条件 |
|
| 担当者より |
仲介料割引可!楽器可・ペット可・デザイナーズ・南向き・洗濯乾燥機付・閑静な住宅街・担当島子 |