HOMEへ戻る
賃貸一覧へ戻る
 
マンション
物件名:55-1京橋
★宝町京橋至近★仲介料割引可能
交通:都営浅草線「宝町」徒歩1分
所在:
賃料: 331,560円
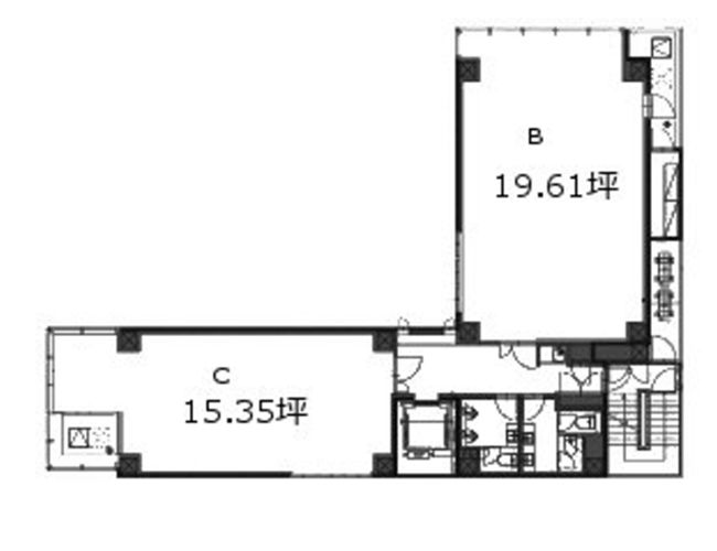
間取り 1R 専有面積 50.77m2 敷金 10ヶ月交渉可 礼金 2ヶ月交渉可
構造 RC 階建/階 12階建て 管理費 ¥49,734 築年数 2015年1月
物件No.O-0005
資料請求・見学・お問い合わせ
資料請求ガイド 他の物件も一括で資料請求される方は、オススメ物件一覧ページにてご希望の物件の「icon 資料請求」にチェックを入れ、一覧ページ下の「iconチェックした物件を資料請求する」ボタンから送信ください。
虫メガネ画像 全画像クリックで拡大表示します。

画像拡大

画像拡大

画像拡大
画像拡大

物件詳細情報

使用用途 事務所 駐車場 なし
現況 空室 入居者人数
入居日 即日 ペット
契約期間 3年 保険加入 必須
設備 冷房 / 暖房 / エレベーター / 機械警備
男女別トイレ / 24時間使用可 / OAフロアー / 光ファイバー対応
備考・条件 JR山手線 東京 9分 東京メトロ銀座線 京橋 2分
都営浅草線 宝町 1分 東京メトロ有楽町線 銀座一丁目 6分
JR京葉線 東京 9分
担当者より ・新築オフィス!・宝町1分、京橋2分他4駅13路線利用可能!・仲介料割引可能! 担当 金子
資料請求・現地見学・お問い合わせはこちら
HOMEへ戻る