HOMEへ戻る
賃貸一覧へ戻る
 
マンション
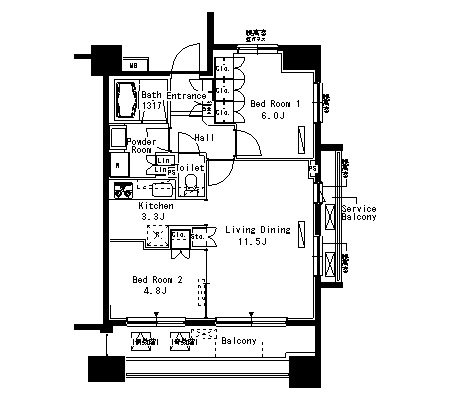
物件名:パークアクシス幡ヶ谷704
★京王線幡ヶ谷駅徒歩2分!
交通:京王線「幡ヶ谷」徒歩2分
所在:
賃料: 241,000円
間取り 2LDK 専有面積 57.17m2 敷金 48.2万円 礼金 なし
構造 鉄筋コンクリート 階建/階 7階/14階 管理費 ¥12,000 築年数 2008年4月
物件No.M-0543
資料請求・見学・お問い合わせ
資料請求ガイド 他の物件も一括で資料請求される方は、オススメ物件一覧ページにてご希望の物件の「icon 資料請求」にチェックを入れ、一覧ページ下の「iconチェックした物件を資料請求する」ボタンから送信ください。
虫メガネ画像 全画像クリックで拡大表示します。

画像拡大

画像拡大

画像拡大
画像拡大
画像拡大
画像拡大
画像拡大

物件詳細情報

使用用途 住居 駐車場 有(30,000円)
現況 空き 入居者人数 2人入居可
入居日 即可 ペット
契約期間 2年 保険加入
設備 オートロック, 宅配ボックス, 平置き駐車場あり, 大型駐車場, バイク置場あり, 内廊下, 閑静な住宅街, インターネット接続可, 管理人有り, 駐輪場あり, 敷地内ゴミ置場, 中高層マンション, 防犯カメラ, ペット相談, 楽器相談, CATV, CS, BS
バス・トイレ別, 独立洗面台, 追い焚き, ウォシュレット, 浴室乾燥機, ウォークインクローゼット, 南向き, 初期費用カード決済可, 角部屋, 洗面所独立, コンロ2口以上, エアコン付き, シューズボックス, TVモニタ付きインタ
備考・条件
担当者より 仲介料割引可!ペット可・楽器可・幡ヶ谷駅,初台駅,代々木上原駅,3駅利用可・デザイナーズ・担当島子
資料請求・現地見学・お問い合わせはこちら
HOMEへ戻る