▼ マンション
物件名:パークハビオ赤坂305号室
★築浅★便利な赤坂駅徒歩4分!
交通:東京メトロ千代田線「赤坂」徒歩4分
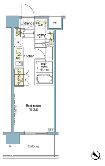
| 間取り |
1K |
専有面積 |
25.04m2 |
敷金 |
25.4万円 |
礼金 |
12.7万円 |
| 構造 |
鉄筋コンクリート |
階建/階 |
3階/11階 |
管理費 |
¥10,000 |
築年数 |
2013年7月 |
他の物件も一括で資料請求される方は、オススメ物件一覧ページにてご希望の物件の「
資料請求」にチェックを入れ、一覧ページ下の「

チェックした物件を資料請求する」ボタンから送信ください。

全画像クリックで拡大表示します。
物件詳細情報
| 使用用途 |
住居・事務所 |
駐車場 |
なし |
| 現況 |
居住中 |
入居者人数 |
確認 |
| 入居日 |
2015年4月中旬 |
ペット |
可 |
| 契約期間 |
2年 |
保険加入 |
要 |
| 設備 |
エレベーター,バス・トイレ別,バス有,クローゼット,浴室乾燥,宅配BOX,シューズボックス,シャワー,トイレ有,温水洗浄便座,ガスコンロ,給湯,24時間換気システム,エアコン,システムキッチン,BS,CS,フローリング,ネット専用回線,ガスレンジ付,室内洗濯機置場,TVインターホン,ガス(都市ガス),下水(公共下水),水道(公営),電気,モニタ付オートロック,防犯カメラ,2F以上,セキュリティ有り,オートロック,バルコニー,駐輪場,バイク置き場
|
| 備考・条件 |
※駐輪場・バイク置き場・駐車場の空き状況等詳細につきましてはお問い合わせください。 |
| 担当者より |
仲介料割引可!ドラム式洗濯乾燥機付・デザイナーズ・SOHO事務所可・ペット楽器可・ダブルロックキー・担当金子 |