HOMEへ戻る
賃貸一覧へ戻る
 
マンション
物件名:コンフォリア芝浦バウハウス
★閑静な住宅街便利な芝浦エリア!
交通:JR山手線「田町」徒歩11分
所在:
賃料: 194,000円
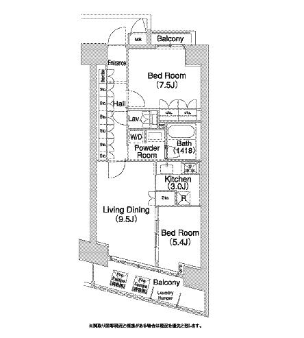
間取り 2LDK 専有面積 61.49m2 敷金 19.4万円 礼金 なし
構造 鉄骨造 階建/階 2階/15階 管理費 \10,000 築年数 2006年3月
物件No.M-0602
資料請求・見学・お問い合わせ
資料請求ガイド 他の物件も一括で資料請求される方は、オススメ物件一覧ページにてご希望の物件の「icon 資料請求」にチェックを入れ、一覧ページ下の「iconチェックした物件を資料請求する」ボタンから送信ください。
虫メガネ画像 全画像クリックで拡大表示します。

画像拡大

画像拡大

画像拡大
画像拡大
画像拡大
画像拡大
画像拡大

物件詳細情報

使用用途 住居 駐車場 なし
現況 居住中 入居者人数 確認
入居日 2015年5月30日予定 ペット ペット相談可
契約期間 2年 保険加入 要 2年 \20,000
設備 給湯 , ガスキッチン , コンロ2口以上 , システムキッチン , バストイレ別 , 浴室乾燥機 , 追い炊き , シャワー , 暖房便座 , 温水洗浄暖房便座 , 独立洗面 , シャンプードレッサー , 室内洗濯機置場 , エアコン , フローリング , バリアフリー , 収納 , ウォークインクローゼット , バルコニー , インターネット対応 , 光ファイバー , BS , ディンプルキー , ダブルロック , デザイナーズ , エレベーター , オートロック , 宅配BOX , 防犯カメラ , T
備考・条件 大型犬飼育可・犬3匹まで飼育可能(敷金3ヵ月)・屋外・屋内ドッグラン有り・アジリティスペース・洗い場・犬用トイレダスト完備・犬用コインランドリー・ドッグコンシェルジュ・シッティングサービス・ドッグホテル・トリミング・グルーミングサロン・1階にドッグカフェ有り
担当者より 仲介料割引可!ペット相談可・屋内外ドックラン、ドッグホテル、トリミングサロンなどペットに優しい物件・担当金子
資料請求・現地見学・お問い合わせはこちら
HOMEへ戻る