▼ マンション
物件名:コンフォリア目黒青葉台206
★礼金0★人気の中目黒高級物件!
交通:東急東横線「中目黒」徒歩8分
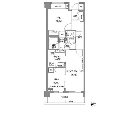
| 間取り |
2LDK |
専有面積 |
52.13m2 |
敷金 |
2ヶ月 |
礼金 |
なし |
| 構造 |
RC |
階建/階 |
2階/3階 |
管理費 |
\15,000 |
築年数 |
2014年5月 |
他の物件も一括で資料請求される方は、オススメ物件一覧ページにてご希望の物件の「
資料請求」にチェックを入れ、一覧ページ下の「

チェックした物件を資料請求する」ボタンから送信ください。

全画像クリックで拡大表示します。
物件詳細情報
| 使用用途 |
住居 |
駐車場 |
なし |
| 現況 |
空 |
入居者人数 |
確認 |
| 入居日 |
即可 |
ペット |
確認 |
| 契約期間 |
2年 |
保険加入 |
要 |
| 設備 |
新築、駐車場相談、駐輪場、バイク置場、ラウンジ、パーティールーム、宅配ボックス、エレベーター、オートロック、防犯カメラ、ダブルロック、CATV、敷地内ゴミ置き場、バストイレ別、室内洗濯機置場、エアコン、24時間換気システム、システムキッチン、コンロ2口以上、ガスコンロ、追い焚き機能(一部ミストサウナ付)、浴室乾燥機、温水洗浄便座、洗面化粧台、クローゼット、マルチメディアコンセント、光ファイバー対応、TVモニタ付きインターホン、防犯センサー、24時間セキュリティシステム、ディンプルキー、ペアガラス、バルコニー |
| 備考・条件 |
|
| 担当者より |
仲介料無料!築浅・パーティールーム・一部ミストサウナ付・ディンプルキー・担当金子 |