HOMEへ戻る
賃貸一覧へ戻る
 
マンション
物件名:品川グラスレジデンス
★最上階★便利な品川駅徒歩5分!
交通:JR山手線「品川」徒歩5分
所在:
賃料: 276,000円
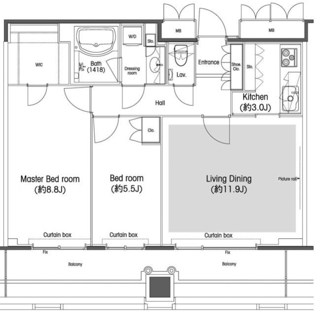
間取り 2LDK 専有面積 67.29m2 敷金 3ヶ月 礼金 なし
構造 SRC 階建/階 20階/20階 管理費 なし 築年数 2007年8月
物件No.M-0616
資料請求・見学・お問い合わせ
資料請求ガイド 他の物件も一括で資料請求される方は、オススメ物件一覧ページにてご希望の物件の「icon 資料請求」にチェックを入れ、一覧ページ下の「iconチェックした物件を資料請求する」ボタンから送信ください。
虫メガネ画像 全画像クリックで拡大表示します。

画像拡大

画像拡大

画像拡大
画像拡大
画像拡大
画像拡大
画像拡大

物件詳細情報

使用用途 住居 駐車場 なし
現況 居住中 入居者人数 確認
入居日 2015年6月13日 ペット 相談可
契約期間 2年 保険加入 \20,000
設備 オートロック, 宅配ボックス, ディンプルキー, TVモニタホン, 防犯カメラ, インターホン, ハイクラス, 敷地内ゴミ置き場, 内廊下, 免震・耐震・制震, 駐車場, 大型駐車場, バイク置き場, 駐輪場
床暖房, 追い焚き, 浴室乾燥, 二人入居可, システムキッチン, オーブン, ウォシュレット, 洗濯機, インターネット, BS, 食器洗浄機, トランクルーム, フローリング, クローゼット, 独立洗面台, バストイレ別, エアコン, エアコン複数基, ウォークインクローゼット, 最上
備考・条件 ※012002号室
担当者より 仲介料割引可!礼金0!ペット相談可・広々バルコニー・ウォークインクローゼット・食器洗浄乾燥機・担当島子
資料請求・現地見学・お問い合わせはこちら
HOMEへ戻る