▼ マンション
物件名:麹町2丁目オフィス5F
半蔵門駅歩1分! 麹町駅歩4分!
交通:半蔵門線「半蔵門駅」徒歩1分
所在:東京都千代田区麹町2丁目
賃料: 2,407,320円
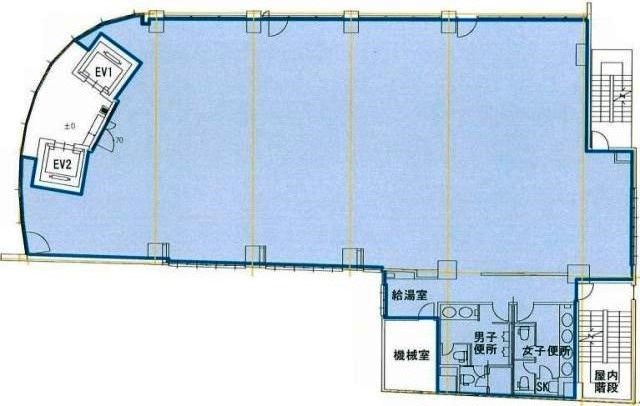
| 間取り |
|
専有面積 |
368.43m2 |
敷金 |
6ヶ月 |
礼金 |
ナシ |
| 構造 |
SRC |
階建/階 |
5階/9階 |
管理費 |
賃料に含む |
築年数 |
1993年2月 |
他の物件も一括で資料請求される方は、オススメ物件一覧ページにてご希望の物件の「
資料請求」にチェックを入れ、一覧ページ下の「

チェックした物件を資料請求する」ボタンから送信ください。

全画像クリックで拡大表示します。
物件詳細情報
| 使用用途 |
オフィス |
駐車場 |
要確認 |
| 現況 |
空室 |
入居者人数 |
|
| 入居日 |
即時 |
ペット |
|
| 契約期間 |
2年 |
保険加入 |
必須 |
| 設備 |
E V :2基(9人乗)、天井高:2450㎜、床仕様:OAフロア(H=50mm)、空調:個別空調、トイレ:室内専用 男女別 洋式、給 湯:室内専用
その他:24時間使用可能、機械警備、光ファイバー(MDFまで) |
| 備考・条件 |
■EVホールは契約面積に入っておりません。 ■契約の際には、SFビルサポート株式会社と保証委託契約を締結していただきます。保証委託料:賃料・共益費・固定費(看板料・駐車場料金等)・消費税含1ヶ月分(2年間) ※与信状況によって敷金額が変動する場合がございます。また、保証システムをご利用いただかない場合、敷金は賃料の12ヶ月分となります。 |
| 担当者より |
半蔵門駅歩1分という好ロケーション!平成5年築の新宿通り沿いに面する視認性の良い111.45坪のビルです。 |