HOMEへ戻る
賃貸一覧へ戻る
 
マンション
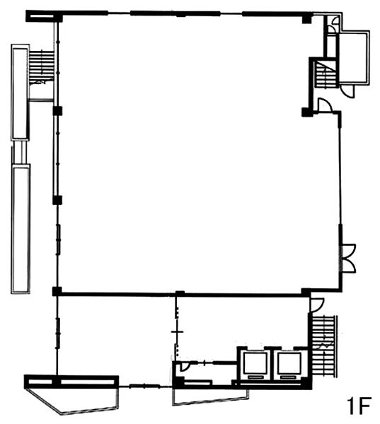
物件名:三番町1オフィスビル1F
半蔵門駅歩7分! 麹町駅歩10分
交通:半蔵門線「半蔵門」徒歩7分
所在:千代田区三番町1
賃料: 1,330,214円
間取り 専有面積 339.31m2 敷金 8ヶ月 礼金 ナシ
構造 SRC 階建/階 1階/8階 管理費 ¥332,553 築年数 1984年8月
物件No.O-0012
資料請求・見学・お問い合わせ
資料請求ガイド 他の物件も一括で資料請求される方は、オススメ物件一覧ページにてご希望の物件の「icon 資料請求」にチェックを入れ、一覧ページ下の「iconチェックした物件を資料請求する」ボタンから送信ください。
虫メガネ画像 全画像クリックで拡大表示します。

画像拡大

画像拡大

画像拡大
画像拡大
画像拡大
画像拡大
画像拡大

物件詳細情報

使用用途 オフィス 駐車場 要確認
現況 空室 入居者人数
入居日 即時 ペット
契約期間 2年 保険加入 必須
設備 E V :2基、天井高:2600㎜、床仕様:タイルカーペット、空調:個別空調、トイレ:フロア専用 男女別 洋式、給 湯:室内専用
その他:24時間使用可能、機械警備、光ファイバー(MDFまで)
備考・条件
担当者より 半蔵門駅歩7分 千鳥ヶ淵が至近のロケーション。内堀通り沿いの賃貸事務所物件です。約102坪のオフィスビルです。
資料請求・現地見学・お問い合わせはこちら
HOMEへ戻る